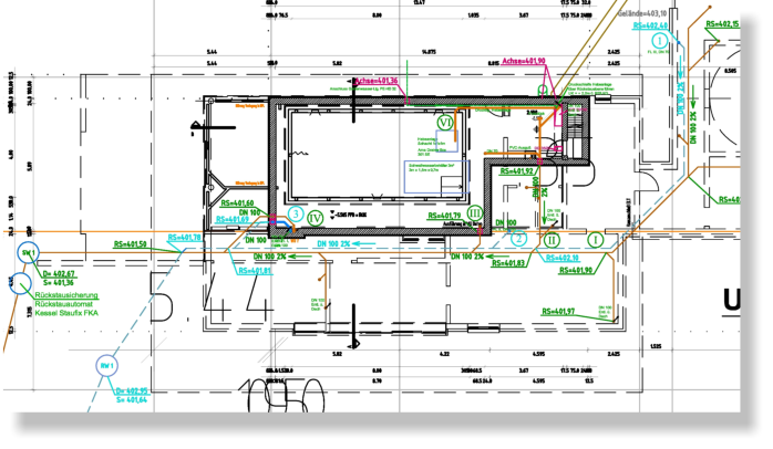
Eine unabhängige Planung der haustechnischen Anlagen zur optimalen Versorgung aller Verbraucher, ob Heizung, Lüftung, Sanitär, Schwimmbadtechnik oder Kälteanlagen. Denn nur eine sinnvoll geplante Anlage bedeutet maximale Versorgung mit minimalstem Aufwand für den Betreiber.    Haustechnische Planungen    Heizung, Lüftung, Sanitär, Schwimmbad, Kälte    Berechnungen wie z.B.         Heizlast nach DIN         Heizflächenauslegung (FBH + HK)         Rohrleitungsdimensionierung         Rohrnetzberechnung         Wirtschaftlichkeitsberechnung    Entwässerungseingabeplanung    (Wohnungsbau, Bürogebäude, Industrie) Haustechnische Planungen Berechnungen Heizlastberechnung zur Ermittlung der notwendigen Heizleistung für die Raumheizflächen und zur Auslegung der optimalen Größe der Heizwärmeerzeuger.   Berechnung der Heizflächen, Fußbodenheizung, Heizkörper, Lufterhitzer, Lüftungsanlagen, Wandheizung usw.  Auslegung der notwendigen Rohrquerschnitte, damit die Heizleistung oder Wasserversorgung in der erforderlichen Menge an der Heizfläche bzw. Zapfstelle ankommt. Dies sollte unter der Berücksichtigung der aktuellen Normen durchgeführt werden, um z.B. nach der neuen Trinkwasserverordnung die Gesundheit der Menschen nicht zu beeinträchtigen. Entwässerung Entwässerungsplanungen vom Einfamilienwohnhaus, über Gewerbeeinheiten bis hin zu großen Wohnanlagen. Eine richtige Entwässerungsplanung unter Berücksichtigung der erforderlichen Schallschutz- und Brandschutzmaßnahmen.